Prodej bytu 3+1 v Kaznějově
REZERVOVÁNO
Školní 404
Kaznějov
↓
REZERVOVÁNO
Školní 404
Kaznějov
↓
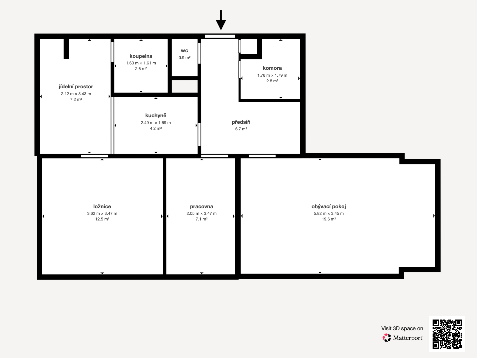
Představuji k prodeji byt o dispozici 3+1 (předělaný z původní 2+1) a výměře 68 m² po částečné rekonstrukci, nacházející se na adrese Školní 404, Kaznějov.
Podívejte se na samostatnou stránku bytu – odkaz ve videoprohlídce.
Kompletní představu o dispozici bytu je možné si udělat z 3D virtuální prohlídky zde v inzerci.
Lokalita:
Byt se nachází na klidném místě v bytové zástavbě. V blízkém okolí se nachází park, mateřská i základní škola, dětská hřiště, obchody, místní úřad, pošta, čerpací stanice a další občanská vybavenost. Nedaleko se nachází autobusová zastávka i vlakové nádraží, což zajišťuje výbornou dostupnost do Plzně.
Budova:
Dům je panelový, revitalizovaný – má novou střechu, fasádu, zateplení, plastová okna, stoupačky... Dům je napojen na veškeré inženýrské sítě: plyn, elektřinu, obecní vodovod a kanalizaci. K dispozici je také kolárna ke společnému užívání.
Dispozice bytu:
Byt je o dispozici 3+1 (předělaný z 2+1) a podlahové ploše 68 m². Skládá z předsíně se šatnou, obývacího pokoje, ložnice, pracovny, kuchyně s jídelním koutem, koupelny a samostatného WC. K bytu náleží také komora vedle bytové jednotky.
Technické informace:
Byt prošel částečnou rekonstrukcí. Původní umakartové jádro bylo nahrazeno sádrokartonem, změnila se také dispozice bytu, kdy přidáním příčky vznikla další místnost. Podlahy jsou pokryty kombinací linolea, dlažby a koberců. V celém bytě je nová výmalba a tapety, jsou zde také opravené rozvody. Vytápění i ohřev vody jsou řešeny dálkově.
Byt je částečně zařízený – nachází se zde kuchyňská linka se spotřebiči (sporák, digestoř s odtahem, pračka se sušičkou, lednice), skříně, komoda, manželská postel, stoly se židlemi a zatemňovací závěsy ve všech místnostech.
Tento byt doporučuji zejména pro jeho velmi dobrý stav a skvělou lokalitu, která nabízí možnosti pro všechny věkové kategorie.
Pro koupi bytu zajišťuji kompletní realitní a právní servis a financování hypotečním úvěrem.
Kontaktujte mě, prosím, pro domluvení prohlídky:
Jan Štěpánek
TAURUM reality
Uvedené výměry jsou orientační.

Jan Štěpánek
720 704 275
www.janstepanek.cz
Jsem realitní a hypoteční specialista,
zajišťuji prodej tohoto bytu.
Svým klientům pomáhám prodat jejich nemovitost bezpečně, lépe a za více.
Kupujícím zajišťuji financování hypotékou.
Spolupracuji s týmem profesionálů: fotograf, kameraman, grafik, hypoteční analytici, advokát.
Podívejte se, jak pracuji při prodeji nemovitostí:
jsem spolumajitelem:
TAURUM reality s.r.o.
Kopeckého sady 8, 301 00 Plzeň
Při zájmu o prohlídku vyplňte, prosím, formulář níže, ozvu se vám...