Prodej prostorného domu v Roupově
Roupov 36
2.770.000 Kč
plocha domu: 525 m²
↓
Roupov 36
2.770.000 Kč
plocha domu: 525 m²
↓
Představuji k prodeji prostorný zděný dům nacházející se na adrese Roupov 36.
Dispozice:
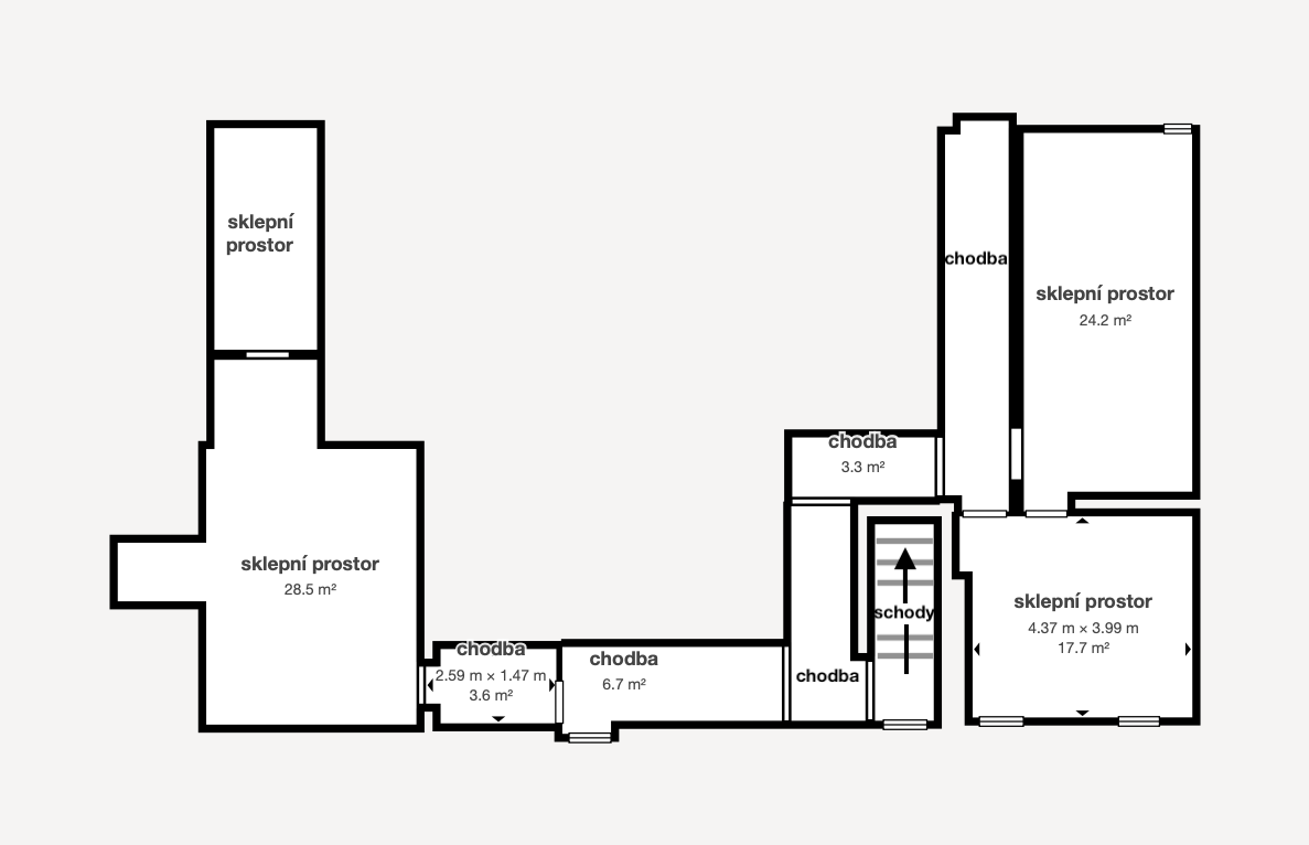
Dům je dvoupodlažní a kompletně podsklepený. K dispozici je také velký půdní prostor ve velmi dobrém stavu, který nabízí možnost vybudovat další obytné místnosti. V domě je celkem 9 místností. Celková podlahová plocha domu (bez sklepa a půdy) je 196 m². Sklepní prostory mají 108 m² a půda 156 m².
Technické informace:
Dům je zděný a napojený na elektřinu a obecní vodovod. Kanalizace je svedena do prostorné jímky o objemu přibližně 50 m³ umístěné přímo před domem. Plynová přípojka je zakončena ve vnější zdi domu. Okna jsou dřevěná a střecha je pokryta pálenými taškami. Aktuálně v domě není funkční vytápění, je tedy nutné jej vybudovat. Síla hlavního jističe je 25 ampérů. Příjezd až k domu je zajištěn po obecní komunikaci.
Dům je vhodný například pro vybudování kanceláří, sídla firmy, skladových prostor nebo jej lze přestavět na několik bytových jednotek.
Pro koupi domu zajišťuji kompletní realitní a právní servis a financování hypotečním úvěrem.
Kontaktujte mě, prosím, pro domluvení prohlídky:
Jan Štěpánek
TAURUM reality
PENB není k dispozici, proto uvádíme třídu G.
Uvedené výměry jsou orientační.
sklep


1. nadzemní podlaží


půdní prostor

Jan Štěpánek
720 704 275
www.janstepanek.cz
Jsem realitní a hypoteční specialista,
zajišťuji prodej tohoto domu
a případné financování hypotečním úvěrem.
Svým klientům pomáhám prodat jejich nemovitost bezpečně, lépe a za více.
Kupujícím zajišťuji financování hypotékou.
Spolupracuji s týmem profesionálů: fotograf, kameraman, grafik, hypoteční analytici, advokát.
Podívejte se, jak pracuji při prodeji nemovitostí:
jsem spolumajitelem:
TAURUM reality s.r.o.
Kopeckého sady 8, 301 00 Plzeň
Při zájmu o prohlídku vyplňte, prosím, formulář níže, ozvu se vám...